MALBA PUERTOS
Puertos Escobar - Buenos Aires - Argentina
INFRAESTRUCTURA PARA CONSERVACIÓN Y EXHIBICIÓN
En MALBA PUERTOS, desarrollamos un sistema integral de infraestrutura destinado a acompañar las dinamicas de conservación, guarda y exhibición de obra contemporánea.
VISIBLE STORAGE
Tendencia mundial de museos abiertos al publico
Fuimos convocados para realizar el mobiliario de exhibición y guarda de obras de arte en Malba Puertos el proyecto general tuvo la dirección de Estudio Herreros y en menos de 3 meses se plantearon los lineamientos conceptuales y se comenzó con la etapa proyectual de diseño que consistió en evaluar la obra a guardar como primera instancia, la dinámica del aula taller y la modulación general del edificio en módulos de 2800mm y secciones de 1400mm.
DETALLES
Sistemas Integrados
SKETCHES
Re diseñamos la propuesta del cliente en base a los requerimientos establecidos.
MODELADO 3D
Procesos
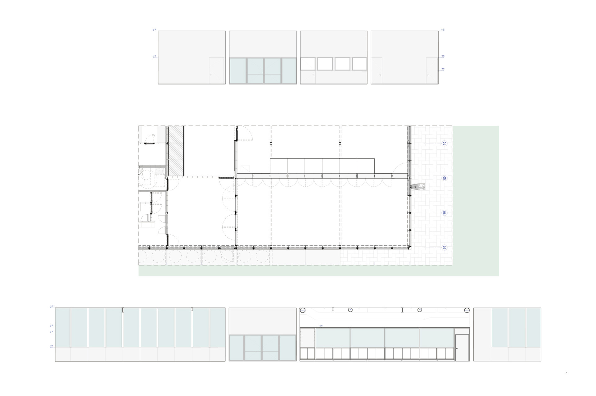
PLANOS DE  IMPLANTACIÓN
Vistas de mobiliario en la planta del edificio

GESTIÓN DE PRODUCCIÓN
Producción 
IMPLEMENTACIÓN
Dirección de obra

Back to Top